3254 E 5th Avenue Vancouver, British Columbia V5M 1P3
$1,738,000
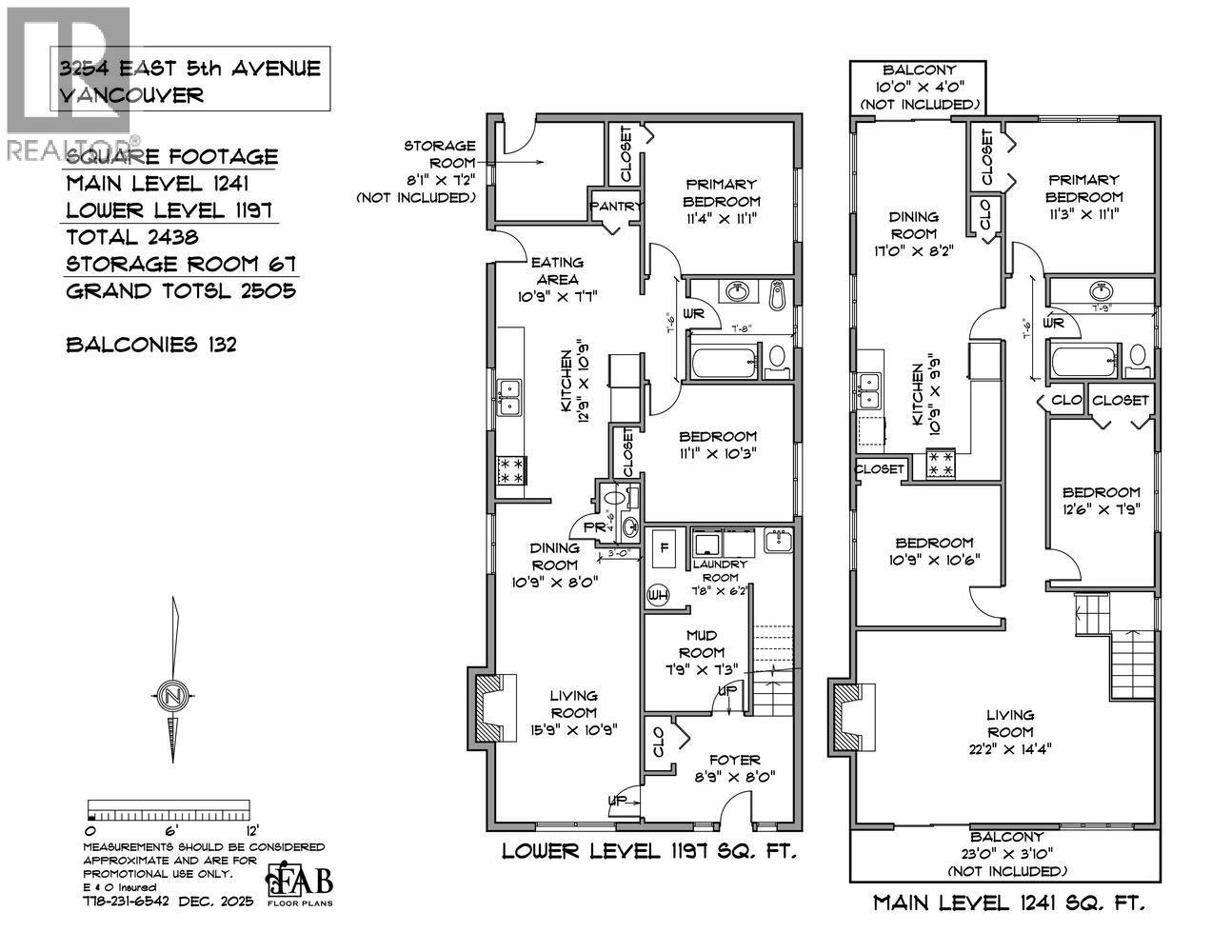
The property is a detached single-family home located at 3254 East 5th Avenue in East Vancouver. Originally built in 1934, it is a two-level house with a full lower-level two-bedroom suite and a 3-bedroom main floor, offering approximately 2,505 square feet of total living space. The home sits on a 4,026-square-foot lot with rear-lane access and a detached double garage. Finished with stucco and brick and topped by a tar-and-gravel roof, the house is in average overall condition with dated interior finishes. The property is located in the established Renfrew neighbourhood, a quiet residential area characterized by single-family homes, and sits directly across from Sunrise Park with convenient access to schools, transit, shopping, and major roadways. Thank You (id:22222)
Property Details
| MLS® Number | R3074410 |
| Property Type | Single Family |
| Amenities Near By | Recreation |
| Features | Central Location |
| Parking Space Total | 2 |
| View Type | View |
Building
| Bathroom Total | 3 |
| Bedrooms Total | 5 |
| Amenities | Laundry - In Suite |
| Architectural Style | 2 Level |
| Basement Development | Finished |
| Basement Features | Separate Entrance |
| Basement Type | Full (finished) |
| Constructed Date | 1934 |
| Construction Style Attachment | Detached |
| Fireplace Present | Yes |
| Fireplace Total | 2 |
| Heating Fuel | Natural Gas |
| Heating Type | Hot Water, Radiant Heat |
| Size Interior | 2,505 Ft2 |
| Type | House |
Parking
| Detached Garage |
Land
| Acreage | No |
| Land Amenities | Recreation |
| Size Frontage | 33 Ft |
| Size Irregular | 4026 |
| Size Total | 4026 Sqft |
| Size Total Text | 4026 Sqft |
https://www.realtor.ca/real-estate/29194535/3254-e-5th-avenue-vancouver
Contact Us
Contact us for more information
R.p. Luke
Personal Real Estate Corporation
www.teamluke.ca/
22308 Dewdney Trunk Road
Maple Ridge, British Columbia V2X 3J2






































