261 W 6th Street North Vancouver, British Columbia V7M 1K7
$1,899,000
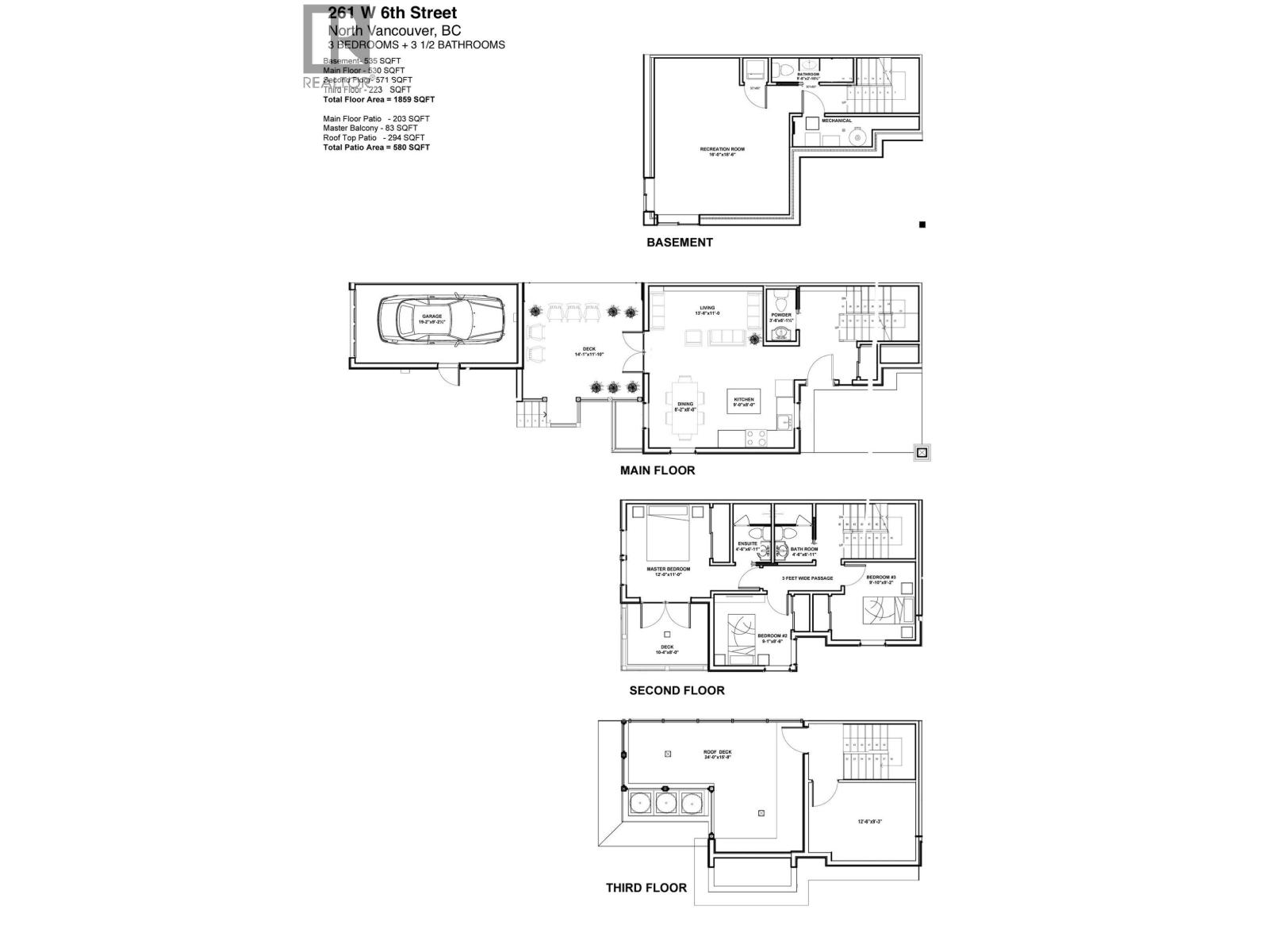
Experience the elegance of this new-built in the prestigious Ottawa Gardens. This home offers 3 levels of well-planned luxury living space set on the most desired area of Lower Lonsdale. The main floor features an open concept living & dining, complemented by a high end kitchen & a patio off the living room. The second level has 3 bedrooms, large balcony off the master bedroom & 2 full bathrooms. The top level has a multi-purpose room & a large-sized patio with breathtaking Vancouver Downtown skyline & water views. Lower Level offers a rec room, washroom & ample storage. Tastefully finished with Natural Hardwood Floors, Custom Cabinetry, Modern Lighting & Premium Fisher & Paykel Appliances. This home also offers an over-sized garage and 1 carport. (id:22222)
Open House
This property has open houses!
2:00 pm
Ends at:4:00 pm
2:00 pm
Ends at:4:00 pm
Property Details
| MLS® Number | R3063019 |
| Property Type | Single Family |
| Amenities Near By | Recreation, Shopping, Ski Hill |
| Features | Central Location, Private Setting |
| Parking Space Total | 2 |
| View Type | View |
Building
| Bathroom Total | 4 |
| Bedrooms Total | 3 |
| Amenities | Laundry - In Suite |
| Appliances | All, Intercom |
| Architectural Style | 2 Level |
| Basement Development | Finished |
| Basement Features | Unknown |
| Basement Type | Unknown (finished) |
| Constructed Date | 2025 |
| Cooling Type | Air Conditioned |
| Fire Protection | Security System, Smoke Detectors, Sprinkler System-fire |
| Heating Type | Baseboard Heaters, Heat Pump |
| Size Interior | 1,859 Ft2 |
| Type | Duplex |
Parking
| Garage | |
| Carport |
Land
| Acreage | No |
| Land Amenities | Recreation, Shopping, Ski Hill |
| Size Frontage | 50 Ft |
| Size Irregular | 50 X 120 |
| Size Total Text | 50 X 120 |
https://www.realtor.ca/real-estate/29045032/261-w-6th-street-north-vancouver
Contact Us
Contact us for more information
Ruby Bagga
www.rubybagga.com/
#100 - 801 Marine Drive
North Vancouver, British Columbia V7P 3K6






















