111 2060 Curling Road North Vancouver, British Columbia V7P 1X4
$599,000Maintenance,
$181.08 Monthly
Maintenance,
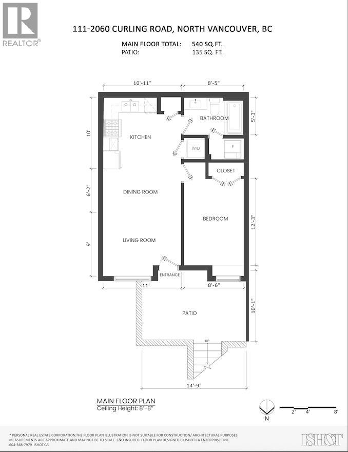
$181.08 MonthlyWelcome to Belle Isle at 111-2060 Curling Road, a modern 1-bedroom, 1-bathroom ground-level townhome in the heart of North Vancouver´s Lions Gate Village. Built in 2020, this home features a private patio, efficient heat pump, in-suite laundry, laminate flooring, and contemporary finishes throughout. The development offers great amenities including air conditioning, elevator access, playground, and storage, with strata fees covering heat, hot water, garbage pickup, and more. Includes 1 covered parking stall and is just 1 block from public transit and top-rated schools. Centrally located near shops, recreation, and downtown access, this is urban living with nature at your doorstep, perfect for first-time buyers or investors. (id:22222)
Property Details
| MLS® Number | R3062823 |
| Property Type | Single Family |
| Amenities Near By | Playground |
| Community Features | Pets Allowed With Restrictions, Rentals Allowed With Restrictions |
| Parking Space Total | 1 |
| Structure | Clubhouse |
Building
| Bathroom Total | 1 |
| Bedrooms Total | 1 |
| Amenities | Laundry - In Suite |
| Appliances | All |
| Constructed Date | 2022 |
| Cooling Type | Air Conditioned |
| Fire Protection | Smoke Detectors, Sprinkler System-fire |
| Fixture | Drapes/window Coverings |
| Heating Type | Forced Air, Heat Pump |
| Size Interior | 540 Ft2 |
| Type | Row / Townhouse |
Parking
| Underground |
Land
| Acreage | No |
| Land Amenities | Playground |
https://www.realtor.ca/real-estate/29042348/111-2060-curling-road-north-vancouver
Contact Us
Contact us for more information
Mahnoush Pourjafari
203-1555 Marine Drive
West Vancouver, British Columbia V7V 1H9








































